ViA Atelier, Inc.
Civil ENGINEERINg • lANDSCAPE ARCHITECTURE • STRUCTURAL DESIGN
ViA Atelier, Inc.
9 Brookside Ct.
San Anselmo, CA 94960
ph: (415) 774-6776
office
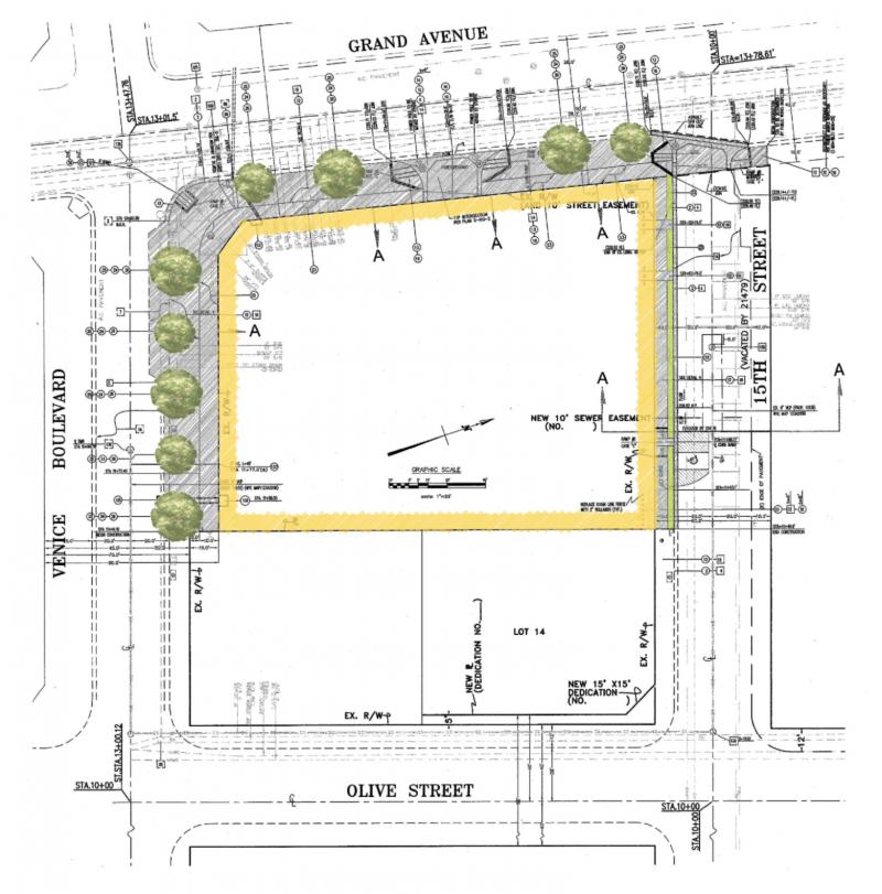
Grand and Venice Affordable Housing. Los Angeles, California, 2004-2005

Off-Site Improvements

Street Cross-Section
On-Site improvements: Grading; storm water collection and conveyance to the public right of way.
Off-Site improvements:Sidewalk and curb reconstruction; Irrigation and drainage for landscaped areas; design of connections for potable water, wastewater, and storm water, including catch basins and main line re-design.

Architect: Goldman Firth Architects, Lino Rossi, AIA
Elementary school located in an commercial and multi-family environment in the San Fernando Valley. The redevelopment of the school site included and an expansion with an additional 0.7-acre, forming a u-shaped campus with an area summing 2.27-acres. The challenge was the actual layout of the site as reflected on the final grade by ensuring positive drainage for these surfaces.
On-Site development: grading, drainage, access and circulation, utilities: potable water distribution, storm water and used water collection and conveyance to the public system. Also providing on site filtration for storm water in accordance with CEQA standards.

Site Plan


Architect: Robbins & Brown, Inc.

OffSite improvements:Sidewalk and curb reconstruction; Irrigation and drainage for landscaped areas; design of connections for potable water, wastewater, and storm water, including catch basins and main line re-design.
Architect: Togawa Smith Architects, Pasadena, California, Juan Aceytuno. AIA
Located 10 minutes east of the hearth of Los Angeles metropolitan area, projectcomprises of 62 low income units, childcare center, social services offices and interior parking, an affordable housing project placed on an 1-acre site.
On-Site improvements: Grading; storm water collection and conveyance to the public right of way.
Copyright 2017 VIA-Engineering. All rights reserved.
ViA Atelier, Inc.
9 Brookside Ct.
San Anselmo, CA 94960
ph: (415) 774-6776
office